Church of the Holy Rood, Carnoustie
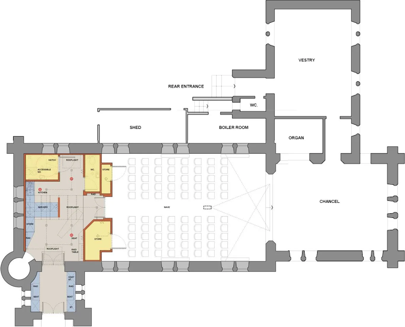
The Church of the Holy Rood In Carnoustie is a Category B Listed Building by Alexander Ross. The Church is eager to provide increased functionality for the congregation, which meets their requirements and also supports more flexible use of the Nave to serve a range of Church and social / community activities.
